R8年2月価格変更しました。JR瀬田駅徒歩24分
- 価格
- 1,290円
- 売土地
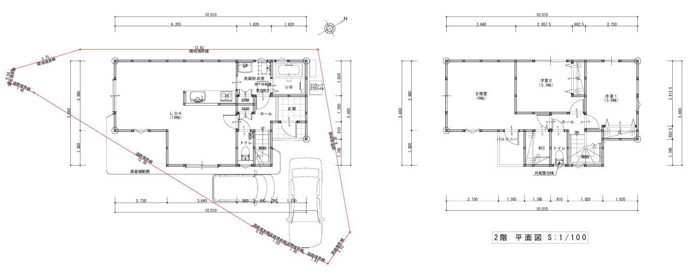
- 間取
- 3LDK
|
|
所在地
滋賀県大津市一里山5丁目
交通
JR東海道・山陽本線瀬田駅 徒歩24分
駐車場
取引態様
売主
引渡/入居時期
相談
現況
更地
地目
宅地
用途地域
第一種住居
都市計画
市街化区域
地勢
平坦
土地面積
110.01m²
土地面積計測方式
建ぺい率
60%
容積率
200%
土地権利
所有権
接道状況
角地
接道方向1
北東
接道間口1
m
接道種別1
公道
接道幅員1
9.6m
位置指定道路1
接道方向2
南東
接道間口2
m
接道種別2
公道
接道幅員2
6.2m
位置指定道路2
国土法届出
不要
周辺環境
設備・条件
物件番号
掲載期限日
※物件掲載内容と現況に相違がある場合は現況を優先と致します。






